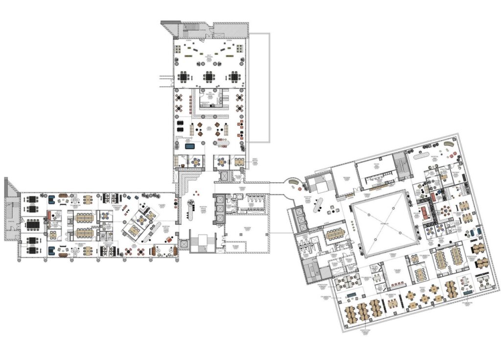
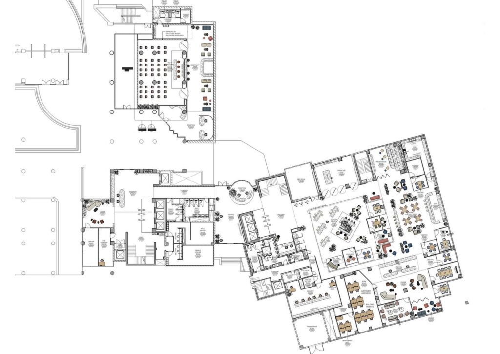
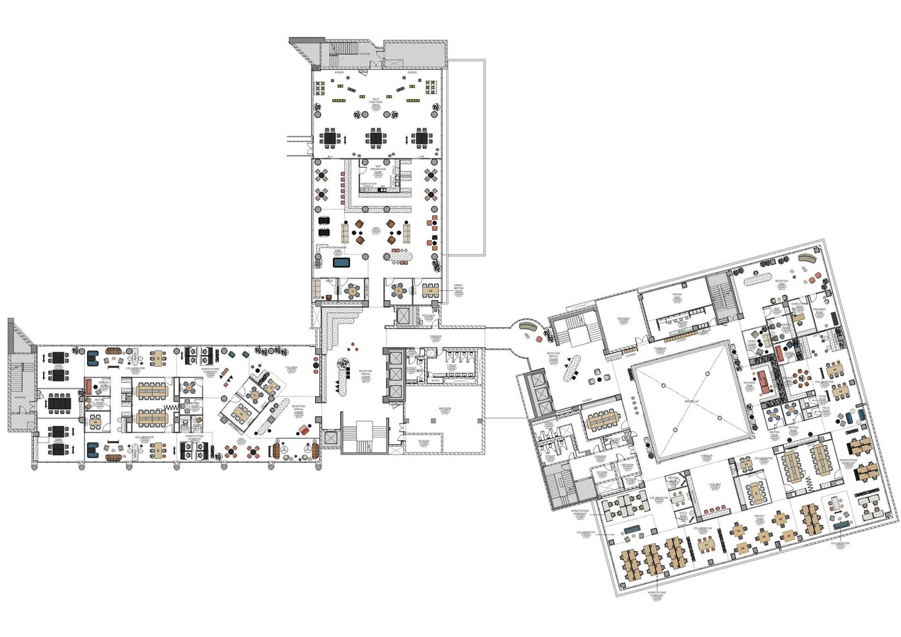
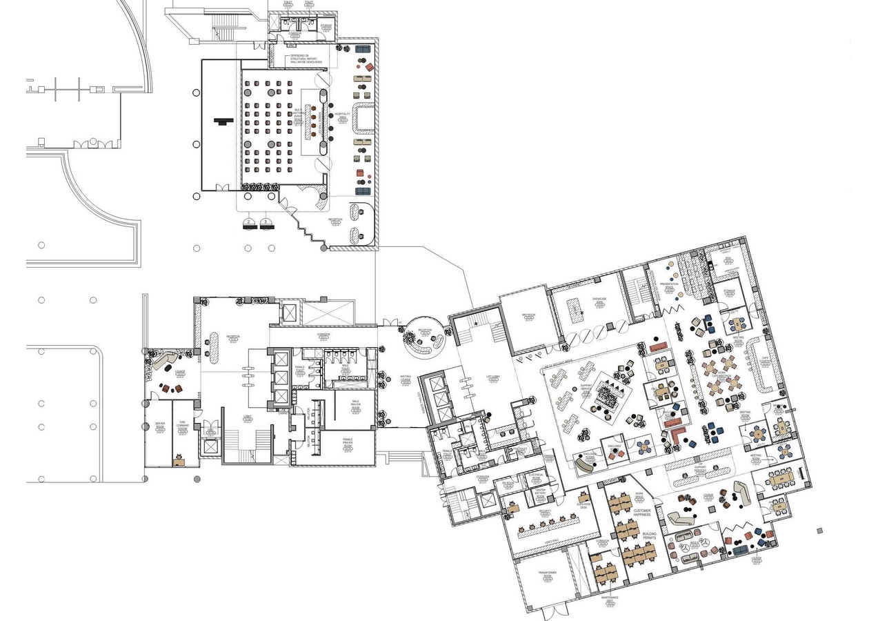
Dubai Municipality’s Office Work Environment Development Project | Dubai Municipality | World Design Awards 2025
Dubai Municipality: Winner of World Design Awards 2025.


Project Details:-
Firm
Dubai Municipality
Designer
Ali Makki
Project Name
Dubai Municipality’s Office Work Environment Development Project
Project Category
Interior Design (Under Construction)
Team
Ali Al Hammadi – Ali Makki – Louai Ibrahim – Mais Masoud – Dima Nabil
Project Location
Dubai
Country
United Arab Emirates
Photography ©Credit
©BLUEHAUS GROUP










