ETERNEL | HZS | International Residential Architecture Awards 2025
HZS: Winner of International Residential Architecture Awards 2025. This design is an innovative response to the paradigm of high-density urban development and ecological sustainability. The core of the project lies in a “landscape-driven” design logic, which reconstructs the spatial structure of the site. At the entrance, the raw-textured ecological cliff and the transparent, frameless glass curtain wall stand in striking contrast, establishing a powerful dialogue between nature and technology and setting the tone for the entire project. Moving downward, the potential of the underground space is unlocked with the creation of the “underground forest canyon,” which connects the towers. The sunken clubhouse is embedded within the terrain, incorporating themed courtyards and rainwater gardens to form a biodiverse microclimate system. Moving upward, the innovative “tree-shaped” tower floor plan disrupts traditional residential forms, maximizing landscape views within limited land space and ensuring that the “layout follows the landscape.” The building massing and façade design further optimize wind conditions and energy consumption. Ultimately, through an integrated ecological strategy and spatial poetics, the project successfully creates a sustainable, healthy future community model.

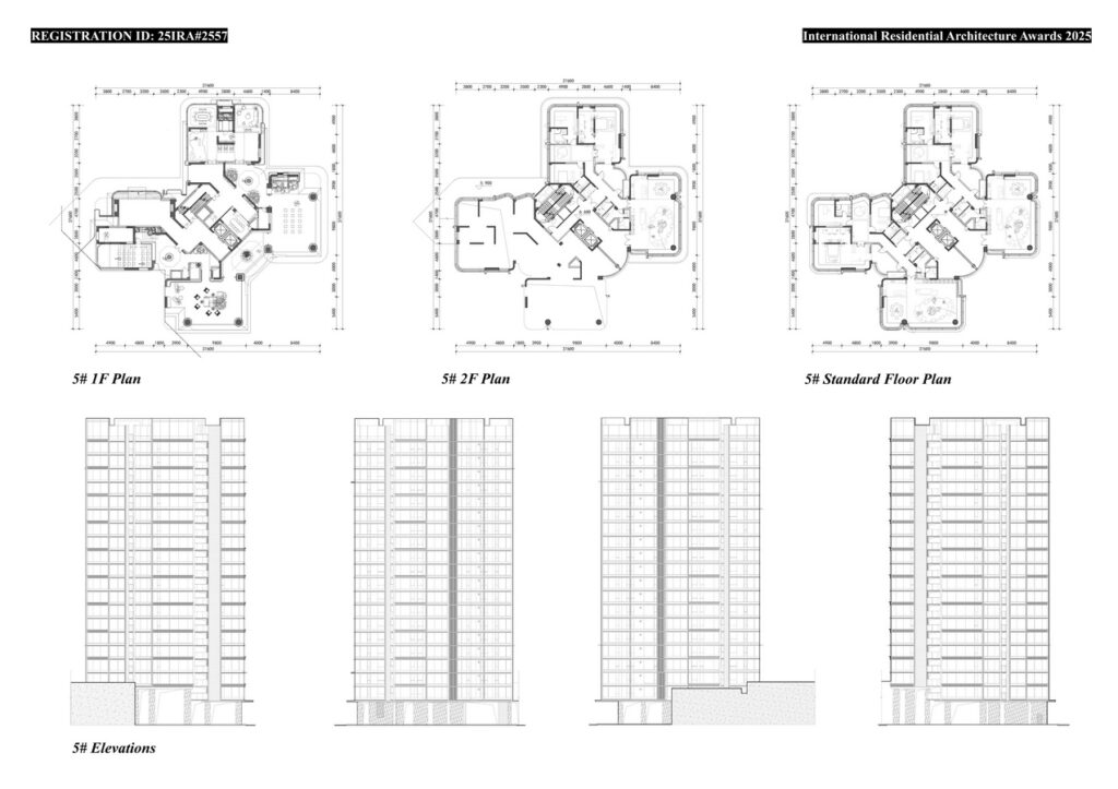
The design innovation is reflected in the systematic breakthroughs from concept to form. In terms of spatial prototype, the core imagery of the “natural canyon” is extended from a two-dimensional landscape into a three-dimensional ecological system that spans both above and below ground. Particularly, the creation of the “underground forest canyon” represents a revaluation of the urban space’s negative potential, transforming it into an active ecological environment; In terms of architectural form, the innovative “tree-shaped” tower floor plan takes the principle of “layout follows the landscape” to its extreme. It breaks away from the conventional notion of standard floor plans, using a branching form to maximize both panoramic views and opportunities for interaction with the urban landscape, offering 270-degree full panoramic views; In terms of technical integration, the ecological cliff is not just a visual symbol but also a functional biological habitat and corridor. The unique curved façade is a result of integrated design that blends architectural aesthetics, structural performance (optimized for wind loads), and environmental physics (natural ventilation), realizing a new modernist connotation where form follows function.
The sustainability practices of this project go beyond conventional technological overlays, aiming for a resilient sustainable paradigm that is deeply integrated with the ecosystem. In terms of ecological sustainability, the project creates a vertically continuous green infrastructure through the integration of above-ground cliffs and underground canyons. Native vegetation and rainwater gardens not only foster biodiversity hotspots but also enable the natural accumulation, infiltration, and purification of rainwater, enhancing the site’s climate adaptability. In terms of energy and environmental sustainability, the unique architectural layout and form optimize natural lighting and ventilation, reducing energy consumption for lighting and air conditioning. The curtain wall system, while maximizing views, utilizes high-performance glass and shading designs that effectively control solar heat gain. In terms of materials and resource sustainability, the selection of durable, recyclable materials such as beige wood-grain stone and high-performance metals helps reduce resource consumption and environmental impact over the entire lifecycle of the project. Ultimately, the project elevates sustainability from mere technical metrics to a spatial experience and lifestyle, creating a truly “healthy community” that harmonizes with its natural surroundings.

Project Details:-
Firm
HZS
Architect
Cheng Long, Wu Mingyou, Yi Wenyuan, Lu Lei
Project Name
ETERNEL
Project Category
Housing Multi-Family Concept
Team
Cheng Long, Wu Mingyou, Yi Wenyuan, Lu Lei, Li Jialiang, Yang Qing, Wan Qijian, Wu Yuze, Hong Wei, Zhou Hao
Project Location
Chengdu
Country
China
Photography ©Credit
©HZS








HZS is an multi-disciplinary design firm striving to provide “integrated” services of planning architecture and landscape design to our clients. Founded for several years, HZS always concentrates on comprehensive design with seamless joint of planning, architecture and landscape and ensures that all design can be perfectly constructed.
HZS has about 800 employees worldwide and our core design team includes dozens of registered planners, architects and landscape designers home and abroad.


