GADU retreat kenting taiwan | CHIAO Architects | World Design Awards 2025
CHIAO Architects: Winner of World Design Awards 2025. The architecture is inspired by the dialogue between mountain and sea, embodying the spirituality of the vertical and the tranquility of the horizontal. The void of the staircase symbolizes an ascending connection to the sky, while the terraces and water bodies evoke the calm and vastness of the ocean. Through these design elements, the resort serves as a barrier between natural and human experiences.

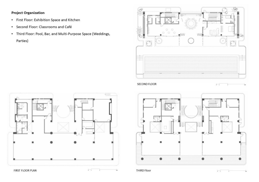
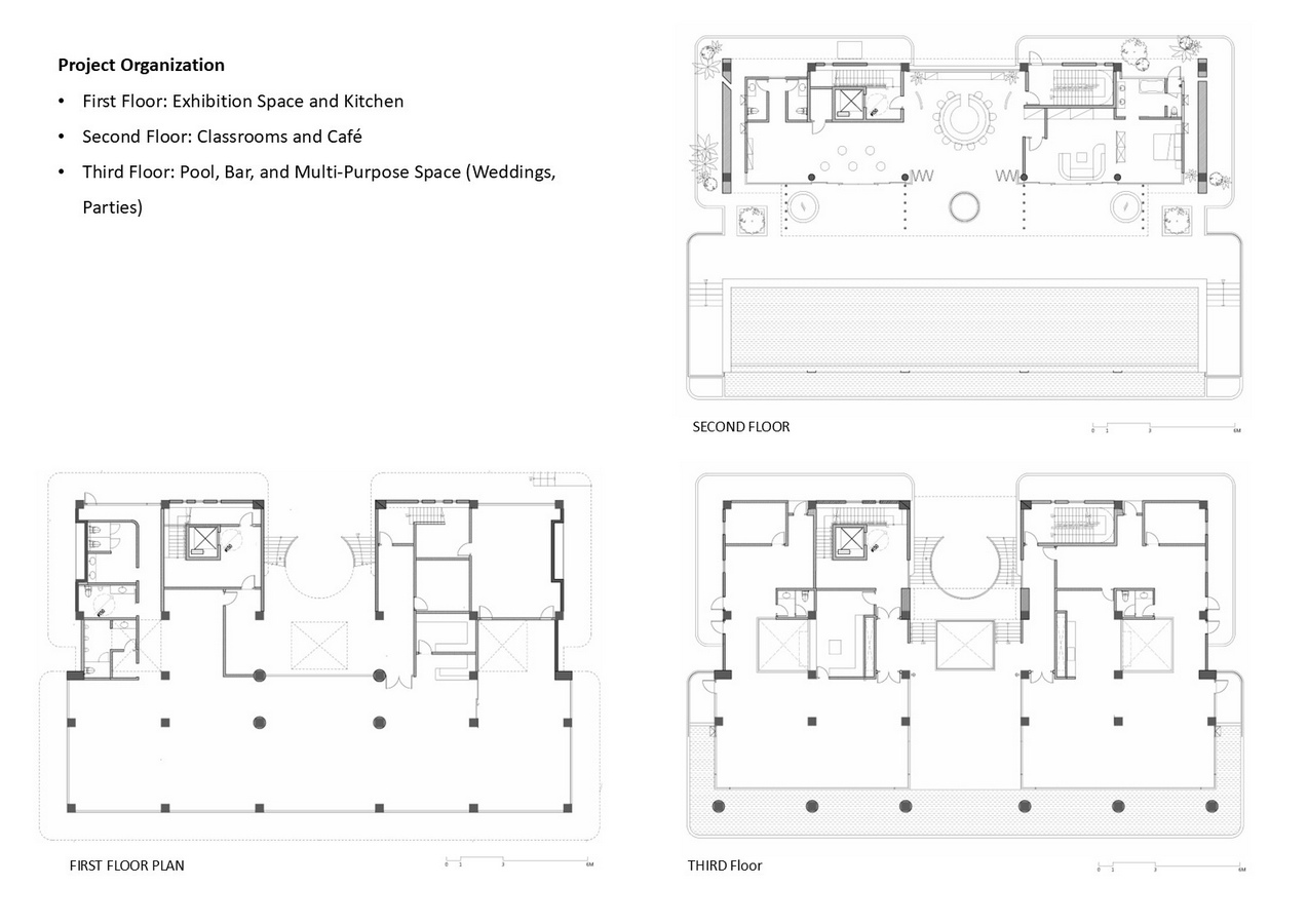
Site Context
Located on the southern tip of Taiwan’s Hengchun Peninsula, the site faces the sea to the west and south, is surrounded by forest, and is accessible from the northeast. The design responds to the monsoon climate—hot southwesterly winds in summer and cool northeasterly winds in winter—through cross-ventilation, shading, and thermal buffering.
Architectural Form
The soaring, curved entrance stair creates a strong sense of central axis and layering. Skylights promote chimney ventilation and daylight. A sunken pool and terrace enhance solar shading and air circulation, while the third-floor structure protects against winter winds. The building form seamlessly integrates with the sloping site, creating a harmonious unity of structure and landscape. Sustainable Development Strategies
The building utilizes natural ventilation and rainwater recycling. Local materials such as exposed concrete and washed pebble finishes ensure durability and complement the natural palette.
Innovation and Impact
GADU Retreat goes beyond architecture—it offers a vibrant, interactive space where people can rediscover the rhythms of wind, light, and water. Through fluid spatial flows and a dialogue with the environment, it reconnects people with nature.
Site Area: 1,843.08 square meters
Total Building Area: 2,211.7 square meters
Structure: Hybrid reinforced concrete and steel structure
Exterior Materials: Washed pebble finish, exposed concrete, and glass. Sustainability: Natural ventilation, sun shading, water recycling, and green terraces

Project Details:-
Firm
CHIAO Architects
Architect
Chung-chiao Wang
Project Name
GADU retreat kenting taiwan
Project Category
Architecture Design – Hotel & Resort (Concept)
Team
wang chung chiao、TYC
Project Location
Hengchun Township
Country
China
Photography ©Credit
Yi-Hsien Lee and Associates








Wang Chung-Chiao Architects /Chiao Design Co., Ltd.
Led by architect Chung-Chiao Wang, the studio is based in Taiwan, integrating the two disciplines of architecture and interior design to pursue diverse practices spanning residential, commercial, and public architecture.
Its works emphasize the dialogue among site, climate, materials, and environment, responding to nature and culture through a rational architectural language and refined spatial scale.Representative projects such as the Longpan / Baisha Public Toilets and M42 Resort Kenting have received major international and domestic honors, including the iF Design Award (Germany), the Architecture MasterPrize (USA), and the Taiwan Interior Design Award (TID Award).


