The Standard, Singapore | DP Architects | World Design Awards 2025
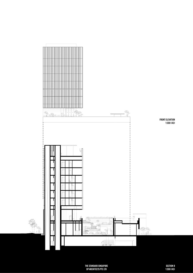
DP Architects: Winner of World Design Awards 2025. Located along Orange Grove Road, The Standard, Singapore is nestled among Singapore’s most prestigious addresses[ST1] , a stone’s throw from the 150-year-old UNESCO-honoured Botanic Gardens and Nassim and close to the hustle and bustle of Orchard Road – akin to Singapore’s New York’s Fifth Avenue. Amidst the demure volumes of mostly residential blocks between Nassim and Orchard Road, the lenticular façade articulation of the hotel’s eight-storey form shimmers, coyly beckoning visitors towards the surprising twists of amenities concealed within the hotel podium below.

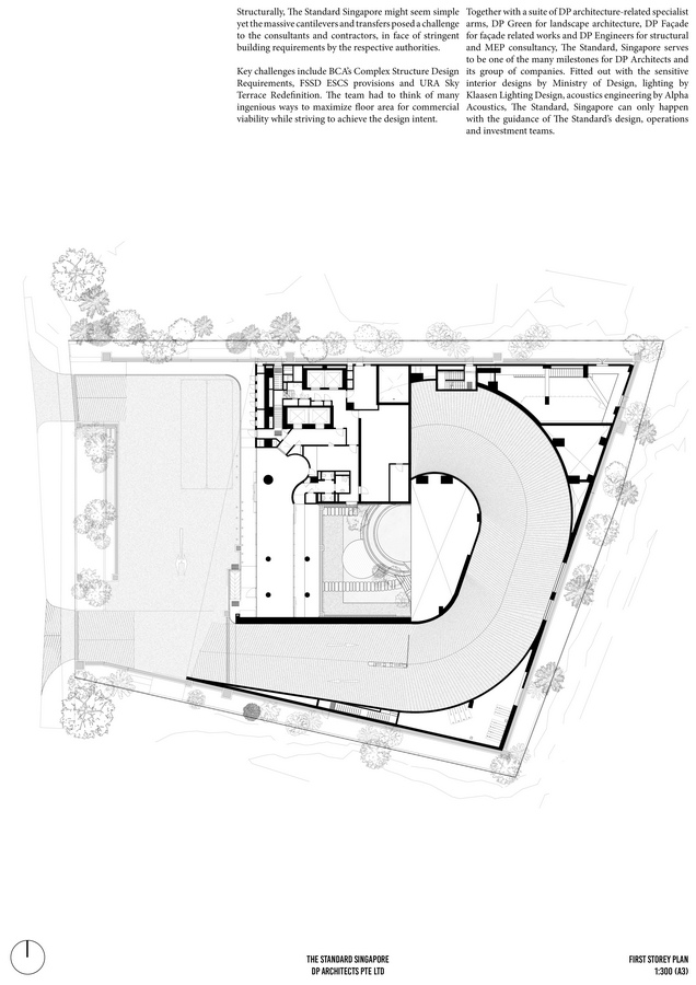
Arriving at the drop-off point, guests are greeted with a cantilevered tower and a highly reflective mirrored ceiling. However, a step into the interior brings the guests into an alternative interpretation of pop-biophilia, with a sunken pool-bar check-in area leading the eye towards a series of lushly landscaped stepped sinkhole-shaped platforms in the podium. This expression carves out hidden spaces that house a secret courtyard, a semi-secluded cave room and stepped terraces that allow for various modes of self-expression before peaking at the landscaped pool deck, the nexus of the hotel’s social activities.
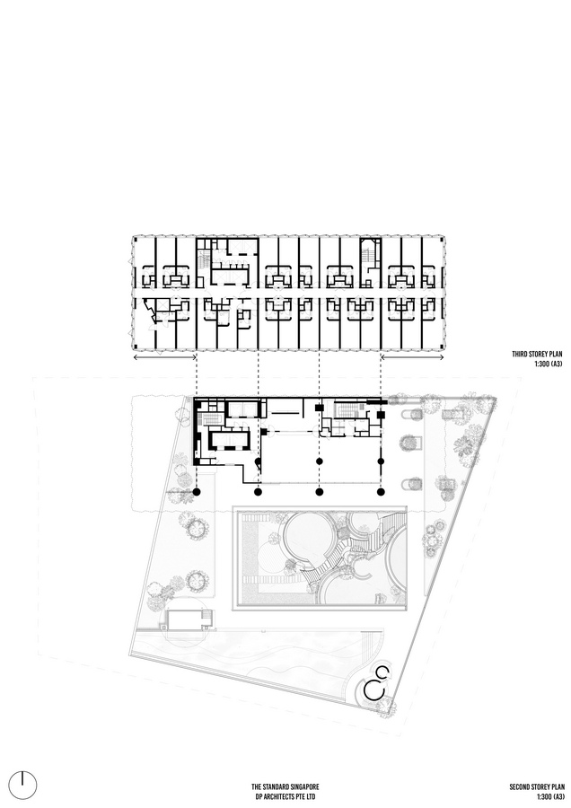
To contrast with this, the team opted for a more sedated, typical floor layout for the guest rooms. 143 keys, including double volume suites, are housed within the tower volume, each room boasting city views through the unconventional faceted façade.
However, guests of The Standard, Singapore are more likely to be of the more gregarious sort, thus it is envisioned that more will spend time sampling the wide array of socially-oriented amenities housed in the podium. These social spaces are intended to nudge guests towards chance conversations while reflecting the brand’s quirky character.
First opened in West Hollywood, The Standard brand cultivated a casual, celebrity-studded ambience. Inspired by the American billboard, the design features a static yet expressive lenticular façade that emphasises the brand’s bold and quirky nature. It sought to reflect the site’s duality of nature and urban, the blending of the East and West, to create an iteration of The Standard in the tropics that is irreverent and unorthodox and aspires to be the island city’s most attractive social club.

Project Details:-
Firm
DP Architects
Architect
Angelene Chan
Project Name
The Standard, Singapore
Project Category
Hospitality (Built)
Team
Angelene Chan, Chua Zi Jun Ziggy, Shawn Teo, Leonard Cheok, Zulsairi bin Sarib, Chong Mei Yan, Eldon Ng
Project Location
Singapore
Country
Singapore
Photography ©Credit
©DP Architects








DP Architects is a leading multidisciplinary design practice in Asia with over 900 staff in 16 global offices and 8 specialist companies. Founded in 1967, it has a deep portfolio of works including Golden Mile Complex, Esplanade – Theatres on the Bay, Singapore Sports Hub and Our Tampines Hub. From Singapore, the ideas and methodologies of the design practice have since been applied to projects across 77 countries. Under its Green-Well-Tech thrust, DP delivers interdisciplinary design solutions at all scales for better-than-sustainable outcomes, contributing to sustainable development and a city’s long-term socio-economic resilience and vibrancy.




