XI’AN XI | HZS | International Residential Architecture Awards 2025
HZS: Winner of International Residential Architecture Awards 2025. The project planning involves 15 residential buildings with 16 or 17 floors, as well as 6 commercial supporting buildings, with a total of 480 households. Based on the positioning of “artistic unique items spanning time periods”, the project integrates modern aesthetics and natural ecology to create a collection-grade residential area that pays tribute to the times.

The building volume and layout fully respect and conform to the urban texture around the site, and the enclosed point-like form helps the buildings create a central landscape. The layout of the residential buildings conforms to the urban texture to highlight the sense of axis. It continues the tradition of the outward-oriented community entrances but differs from them. Specifically, the inward-oriented courtyard-style drop-off design is employed to create a sense of a “grand mansion” typical of high-end residences. It also starts from the site features and adopts a layout method of interweaving courtyard spaces with traffic nodes to resolve the height difference of the site, creating independent yet interconnected courtyard spaces. The project takes advantage of the waterfront location to introduce natural landscapes into all spaces of the community, and the sunken courtyard, dense forest, recreation club on the elevated floor and central garden complement each other and form a three-dimensional landscape.
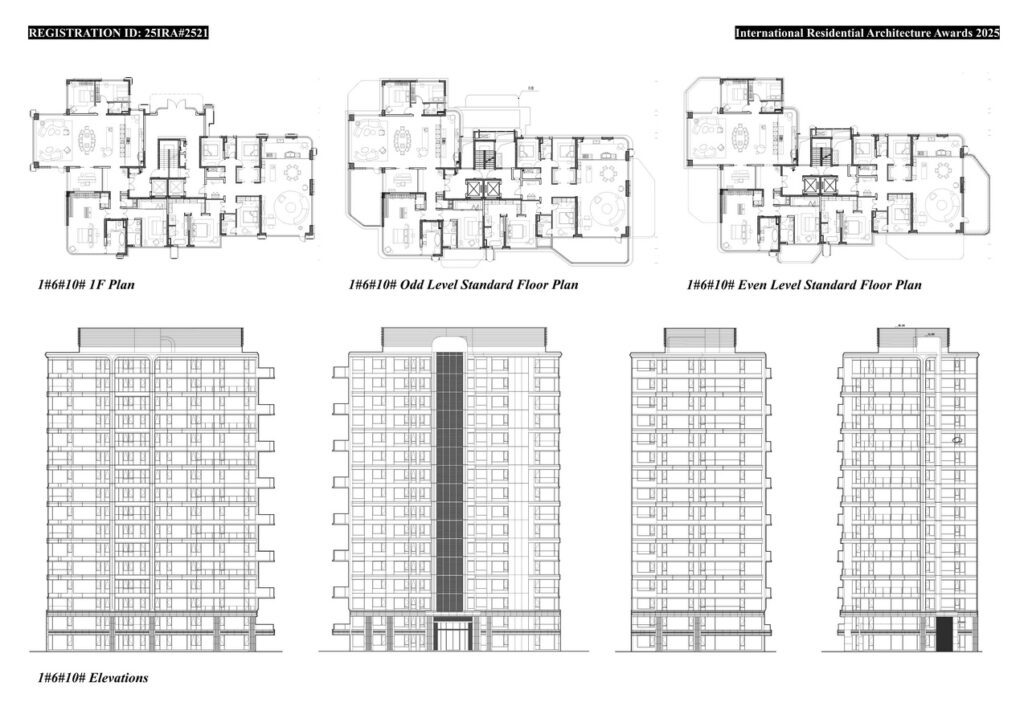
The project site located in the core area of Xi’an Olympic Sports Center has the Ba River on its west side. The design inspiration for its building facade comes from “eight rivers encircling Chang’an”. The shape and oriental charm of the Ba River are extracted, and the curves and the flowing light together express life and rhythm as the light and shadow move. The proportions of the architectural styles of the Tang Dynasty (pavilions, towers and buildings) are integrated with the artistic lines of modern architecture, presenting the architectural beauty of flowing water and rising clouds.
The facade achieves a curtain wall effect through the use of large-area glass facades, metal aluminum plates, stone materials and stone-like coatings, and the grey and beige tones create a simple and fashionable image. The innovative “crown-shaped” design located at the top of the building can enhance visual recognition and complement the city landmarks such as the Ba River and Chang’an Cloud.
The combination of curtain walls, aluminum plates, stone materials and stone imitation coatings can bring a modern and transparent feel similar to that of a curtain wall, and can reflect light and create unique light and shadow effects. The use of stone and aluminum plates enhances the texture and durability of the building. The imitation stone coating gives the building a texture similar to that of real stone, thereby enhancing the overall quality and taste of the building. This treatment, along with the combination of grey and off-white, makes the building facade look simple and fashionable and in line with international trends.

Project Details:-
Firm
HZS
Architect
Su Xinjie, Cheng Jiangping, Xu Tao, Guo Lianrong
Project Name
XI’AN XI
Project Category
Housing Multi-Family Under Construction
Team
Cao Guang, Cao Qiandong, Luo Panglai, Fan Li, Kong Chaoqun, Huang Junhao, Yang Haiyang
Project Location
Xi’an
Country
China
Photography ©Credit
©HZS










HZS is an multi-disciplinary design firm striving to provide “integrated” services of planning architecture and landscape design to our clients. Founded for several years, HZS always concentrates on comprehensive design with seamless joint of planning, architecture and landscape and ensures that all design can be perfectly constructed.
HZS has about 800 employees worldwide and our core design team includes dozens of registered planners, architects and landscape designers home and abroad.


